
培训学校装修设计——效果图案例赏析
作者:卓昊装饰 浏览量:次 发布时间:2019年10月10日
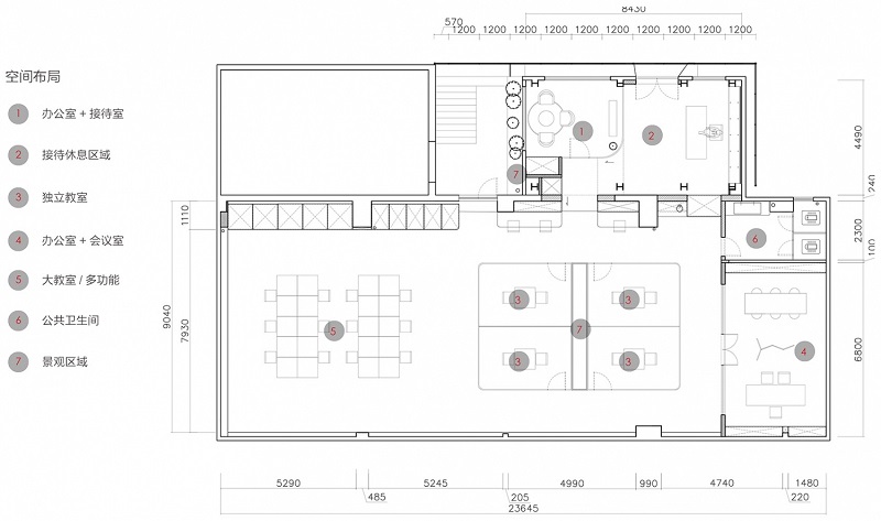
【培训学校设计】平面图

【培训学校装修设计】

【培训学校装修设计】

【培训学校装修设计】其他

【培训学校装修设计】

【培训学校装修设计】

【培训学校装修设计】

【培训学校装修设计】

【培训学校装修设计】

【培训学校装修设计】

【培训学校装修设计】

【培训学校装修设计】

【培训学校装修设计】

【培训学校装修设计】

【培训学校装修设计】

【培训学校装修设计】

上一篇:办公室装修设计效果图—案例赏析
下一篇:办公室设计效果图—案例赏析